$698,000
1,178
SQ FT
$593
SQ/FT
475 Nabor Street
@ Upton - 3100 - San Leandro, San Leandro
- 3 Bed
- 1 Bath
- 0 Park
- 1,178 sqft
- SAN LEANDRO
-
-
Sun Feb 22, 11:00 am - 5:00 pm
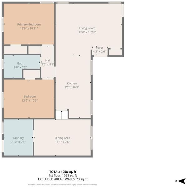
Welcome to 475 Nabor Street, a thoughtfully updated home blending character and modern functionality. Inside, preserved original hardwood floors and abundant natural light create a warm living space. The kitchen features premium leathered granite countertops and high end Hansgrohe fixtures, while the bathroom offers a Kohler cast iron soaking tub for a spa like feel. A standout feature is the newly constructed detached executive office completed in 2024. Fully permitted and built to current Title 24 energy standards, this insulated conditioned space includes heating, air conditioning, and a dedicated electrical sub panel ideal for remote work, studio use, or flexible bonus space. The composition shingle roof was updated approximately seven years ago. The property offers a two car driveway, a weather tight utility shed, and a beautifully curated food forest backyard with mature fruit trees including apple, peach, plum, citrus, berries, and grapevines creating privacy and a true garden retreat. Conveniently located near downtown San Leandro, parks, shopping, dining, and commuter access, and a 10-15 minute walk from the Bart station. This home delivers charm, flexibility, and comfortable indoor outdoor living all in one.
- Days on Market
- 10 days
- Current Status
- Active
- Original Price
- $698,000
- List Price
- $698,000
- On Market Date
- Feb 12, 2026
- Property Type
- Single Family Home
- Area
- 3100 - San Leandro
- Zip Code
- 94578
- MLS ID
- ML82034837
- APN
- 077C-1265-014
- Year Built
- 1947
- Stories in Building
- 1
- Possession
- Unavailable
- Data Source
- MLSL
- Origin MLS System
- MLSListings, Inc.
Hesperian Elementary School
Public K-5 Elementary
Students: 551 Distance: 0.5mi
Lighthouse Christian Academy
Private K-3 Religious, Nonprofit
Students: 31 Distance: 0.8mi
Monroe Elementary School
Public K-5 Elementary
Students: 392 Distance: 0.8mi
Edendale Middle School
Public 6-8 Middle
Students: 657 Distance: 0.8mi
International Bible Baptist Academy
Private K-7 Combined Elementary And Secondary, Religious, Coed
Students: 17 Distance: 0.9mi
Hillside Elementary School
Public K-5 Elementary
Students: 458 Distance: 0.9mi
- Bed
- 3
- Bath
- 1
- Parking
- 0
- Parking Area
- SQ FT
- 1,178
- SQ FT Source
- Unavailable
- Lot SQ FT
- 5,022.0
- Lot Acres
- 0.115289 Acres
- Cooling
- Central AC
- Dining Room
- Formal Dining Room
- Disclosures
- Natural Hazard Disclosure
- Family Room
- Other
- Foundation
- Crawl Space
- Heating
- Forced Air
- Fee
- Unavailable
MLS and other Information regarding properties for sale as shown in Theo have been obtained from various sources such as sellers, public records, agents and other third parties. This information may relate to the condition of the property, permitted or unpermitted uses, zoning, square footage, lot size/acreage or other matters affecting value or desirability. Unless otherwise indicated in writing, neither brokers, agents nor Theo have verified, or will verify, such information. If any such information is important to buyer in determining whether to buy, the price to pay or intended use of the property, buyer is urged to conduct their own investigation with qualified professionals, satisfy themselves with respect to that information, and to rely solely on the results of that investigation.
School data provided by GreatSchools. School service boundaries are intended to be used as reference only. To verify enrollment eligibility for a property, contact the school directly.




































































